EFFETTUA UNA NUOVA RICERCA, clicca qui.
chiudi

Negozi, uffici e licenze in vendita a Chiari

Rif.: 4932-K2
Pubblicato il: 01/04/2026
Comune: Chiari
Indirizzo: Via Gian Battista Rota n. 33
Tipologia: Negozi, uffici e licenze
Contratto: Vendita
Classe energetica: Classe A4
Ambito: Commerciale
Prezzo: € 358.000,00
Rata: € 1.100,00 mensili
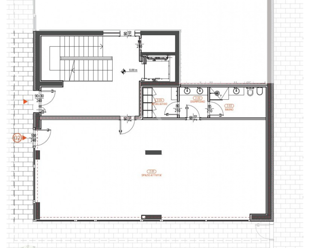
1 Bagni
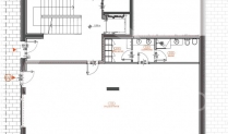
128 Mq
Negozi, uffici e licenze in vendita a Chiari
K2: NEGOZIO AL PIANO TERRA CON AMPIE VETRINE!

Descrizione: Nel cuore pulsante di Chiari, Borgo Rota rappresenta non solo una rivoluzione abitativa, ma anche un’opportunità unica per il tuo business. In un contesto moderno e all’avanguardia, progettato per unire innovazione e funzionalità, sono disponibili superfici commerciali al piano terra fino a 330 mq. Possibilità di acquistare box singolo o doppio e cantina al piano interrato, per rispondere a tutte le esigenze di spazio aggiuntivo.

SPAZI COMMERCIALI PENSATI PER IL SUCCESSO
Le superfici commerciali di Borgo Rota sono state progettate per offrire soluzioni flessibili, ideali per attività, servizi e commercio. Gli spazi si distinguono per:
- Ampia visibilità e posizione strategica, in una zona centrale e in forte sviluppo.
- Grandi vetrine che garantiscono luminosità e un impatto visivo eccellente.
- Accesso diretto al piano terra, con comode aree parcheggio per clienti e collaboratori nelle vicinanze.

PROGETTO INNOVATIVO E SOSTENIBILE
Ogni spazio commerciale è dotato delle più moderne tecnologie per garantire comfort e risparmio energetico, tra cui:
- Impianti di climatizzazione a basso consumo energetico.
- Isolamento termico e acustico di ultima generazione.
- Predisposizione per colonnine di ricarica per veicoli elettrici.
- Pannelli fotovoltaici condominiali per una gestione sostenibile dei consumi.

UN CONTESTO IN CONTINUA EVOLUZIONE
Borgo Rota è parte di un ambizioso progetto di riqualificazione urbana, che trasformerà l’area in un nuovo polo di riferimento per la città di Chiari. Un luogo dove vivere, lavorare e fare shopping si uniscono in una sinergia perfetta.

Non perdere questa occasione unica per posizionare la tua attività in un contesto moderno e dinamico. Chiamaci allo 0307000094 oppure al 3668704803 per fissare un appuntamento e scegliere la soluzione perfetta per la tua attività!

Condividi su:

Negozi, uffici e licenze in vendita a Chiari
Negozi, uffici e licenze in vendita a Chiari
Negozi, uffici e licenze in vendita a Chiari
Negozi, uffici e licenze in vendita a Chiari
Negozi, uffici e licenze in vendita a Chiari
Negozi, uffici e licenze in vendita a Chiari
Negozi, uffici e licenze in vendita a Chiari
Negozi, uffici e licenze in vendita a Chiari
Negozi, uffici e licenze in vendita a Chiari

Potrebbe interessarti

dettagli dettagli
Comune: Chiari
Tipologia: Negozi, uffici e licenze
Prezzo: 370000€
Rif.: 4932-K4
dettagli dettagli
Comune: Chiari
Tipologia: Negozi, uffi.. - Trilocale
Prezzo: 332000€
Rif.: 4932-B2
dettagli dettagli
Comune: Chiari
Tipologia: Negozi, uffi.. - Trilocale
Prezzo: 294000€
Rif.: 4932-A5
dettagli dettagli
Comune: Urago d'Oglio
Tipologia: Negozi, uffi.. - Quadri/Pe..
Prezzo: 385000€
Rif.: 6627
dettagli dettagli
Comune: Palazzolo sull'Oglio
Tipologia: Negozi, uffi.. - Quadri/Pe..
Prezzo: 299000€
Rif.: 6541
dettagli dettagli
Comune: Castrezzato
Tipologia: Negozi, uffi.. - Quadri/Pe..
Prezzo: 295000€
Rif.: 6578